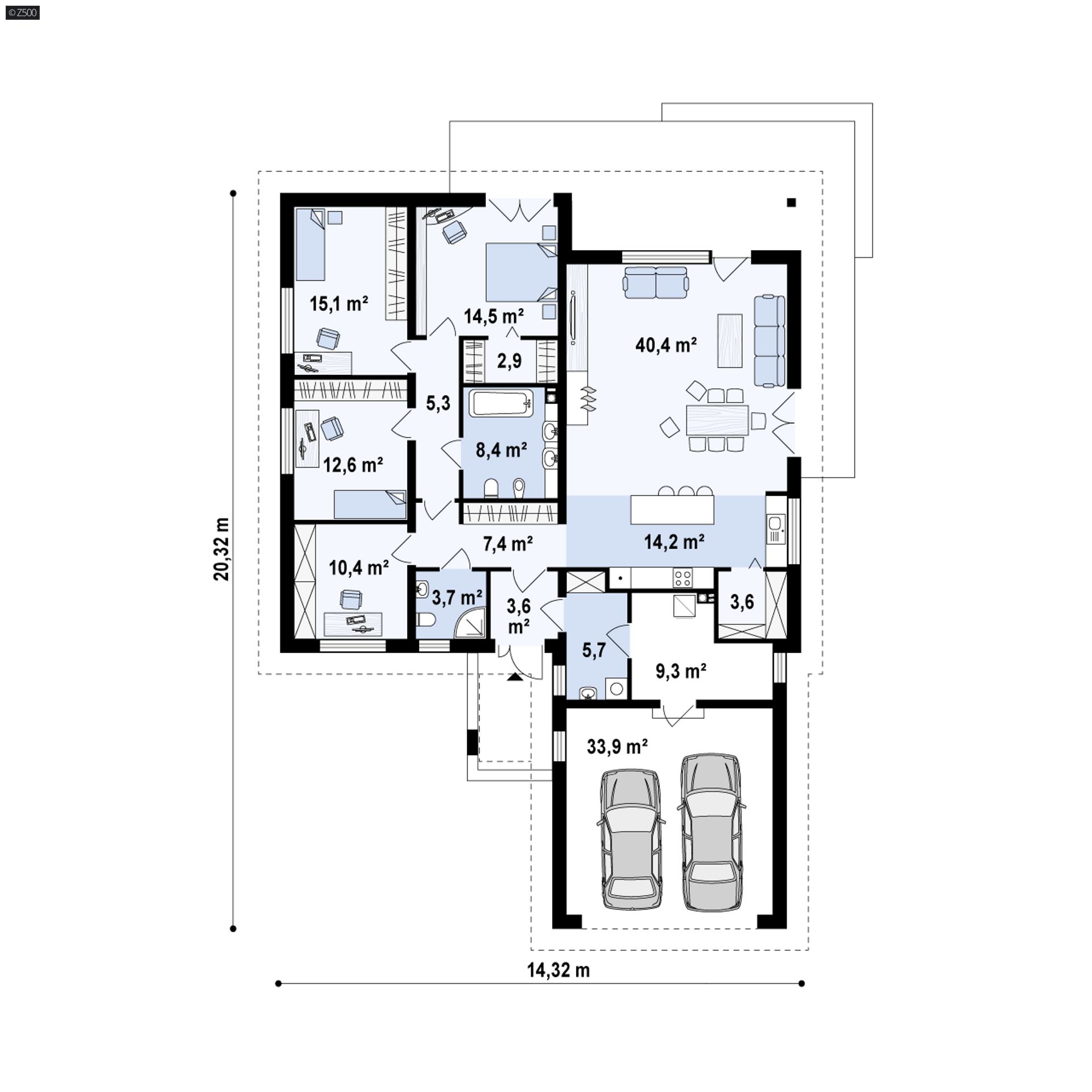
Z52 to parterowy dom z garażem dwustanowiskowym przekryty dachem wielospadowym. W projekcie zaplanowano strop gęstożebrowy, co pozwoli na późniejszą adaptację poddasza na strych lub dodatkowe pomieszczenia mieszkalne.
O atrakcyjności tego projektu świadczy przestronna, ponad 50mkw strefa dzienna z otwarta kuchnią oraz liczne dodatkowe pomieszczenia – duża spiżarnia, obszerne pomieszczenie gospodarcze, wygodna pralnia z oknem. Układ kuchni pozwala na nowoczesną aranżację z dużą wyspą pośrodku, ale dla tradycjonalistów istnieje również możliwość wydzielenia osobnej, zamkniętej przestrzeni. W lewym skrzydle domu znajduje się gabinet, 3 komfortowe sypialnie oraz 2 łazienki. Główna sypialnia posiada własną garderobę oraz wyjście na zadaszony taras.
Z52 to ciekawy projekt z bogatym programem funkcjonalnym. Okładziny z drewna oraz szarego tynku nadają mu nowoczesnego charakteru. Prosty układ konstrukcji pozwala na niemal dowolne kształtowanie wnętrza przez przesunięcia ścianek działowych.