Powierzchnia

74.07 m2

Cena budowy

od 133 326 zł netto

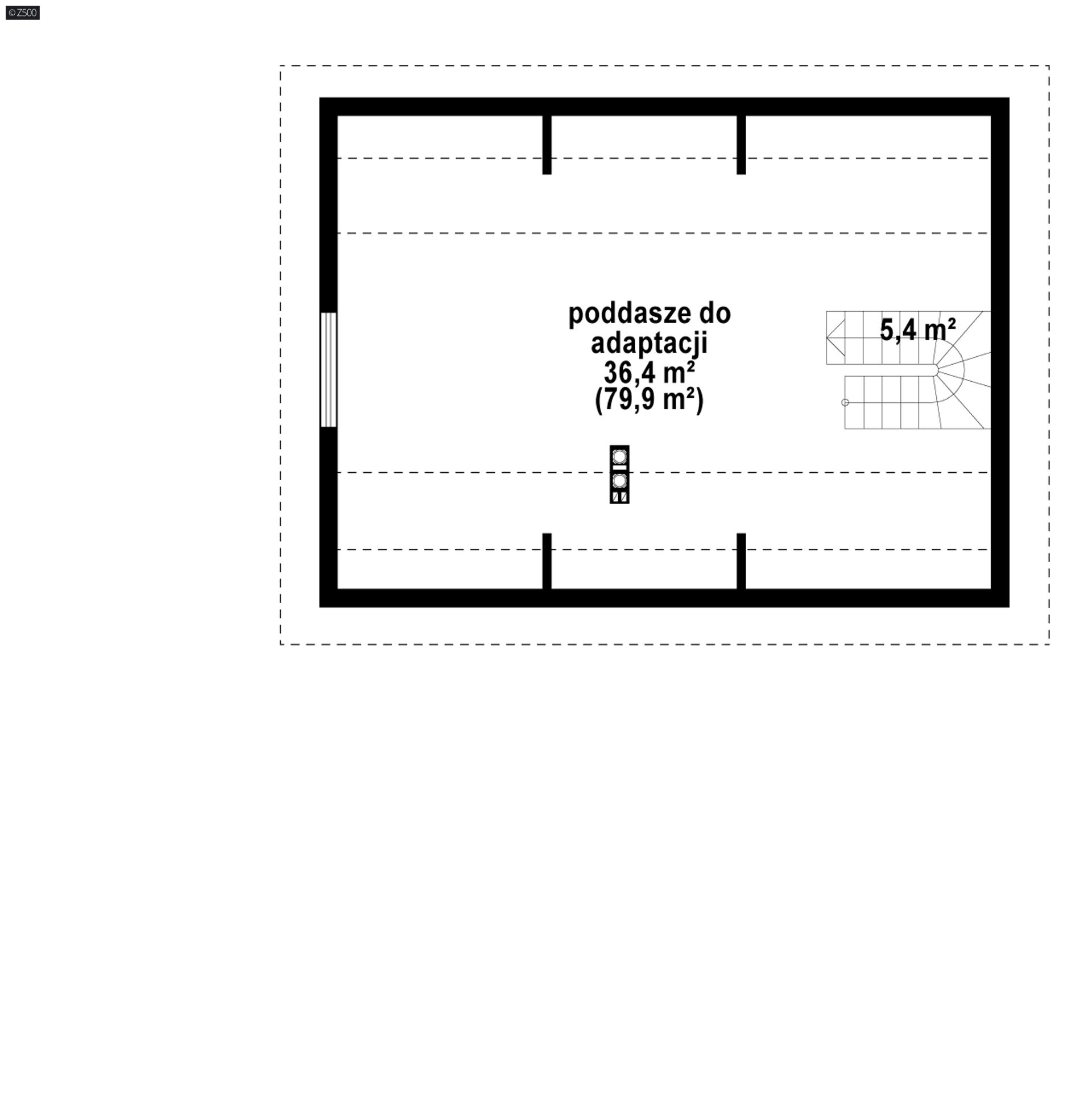
Z255 D a to wersja projektu z255 ze zmienionym układem funkcjonalnym. W tym wariancie kuchnia wraz z kotłownią znajdują się od frontu budynku. Do pomieszczenia gospodarczego mamy bezpośredni dostęp z sieni. Jeden, centralnie ulokowany komin to oszczędne rozwiązanie. Strefa nocna to dwie podobnej wielkości sypialnie. Jedna z nich posiada własną garderobę oraz wyjście na zadaszony taras i do ogrodu. Zaletą projektu jest możliwość adaptacji poddasza, co pozwoli zyskać dodatkowe 37mkw powierzchni użytkowej.

Dane projektu

  • Powierzchnia użytkowa: 74.07 m²
  • Powierzchnia netto: 79.06 m²
  • Powierzchnia zabudowy: 96.16 m²
  • Wysokość: 6.69 m
  • Wymiary elewacji: 11.42 × 8.42
  • Minimalna działka: 18.42 × 16.42
  • Kąt dachu: 30°
  • Typ dachu: dwuspadowy
  • Kondygnacje: 1 kondygnacje
  • Technologia: drewniany
  • Ogrzewanie: gazowe
  • Wentylacja: mechaniczna
  • Garaż: bez garażu
  • Cena projektu: 4 290 zł
  • Szacunkowa wycena SSO: 133 326 zł

Rzuty

Sprawdź wycenę budowy tego projektu

Darmowa wycena każdego projektu

Zrealizuj swój wymarzony dom szkieletowy z nami! Skontaktuj się, a przygotujemy dla Ciebie bezpłatną wycenę i pomożemy na każdym etapie realizacji.