Powierzchnia

83.66 m2

Cena budowy

od 150 588 zł netto

Z177 D to projekt domu z poddaszem użytkowym. Prosta, zgrabna bryła, dwuspadowy dach oraz ciekawe wykończenie elewacji nadają mu charakterystycznego wyglądu

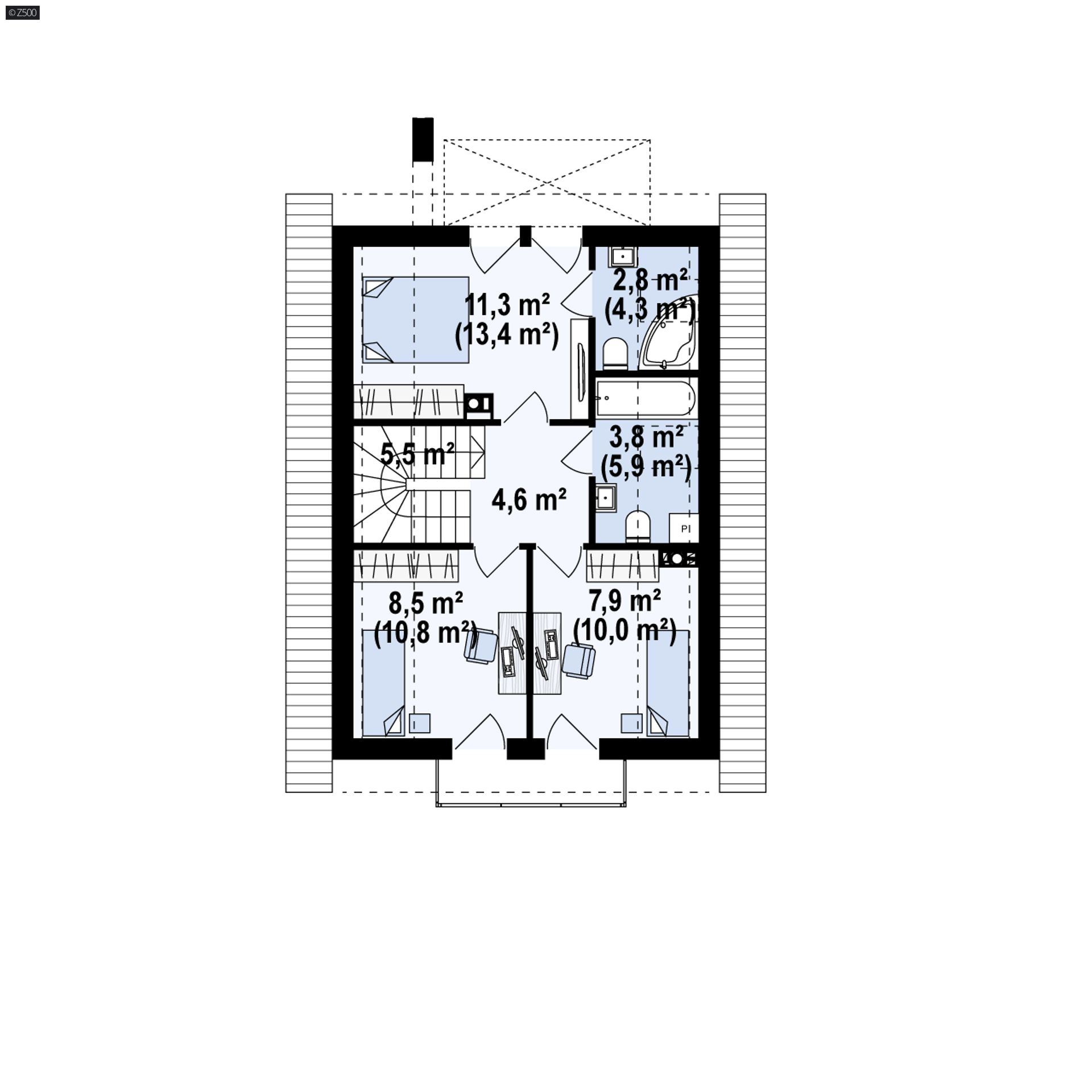
Na parter wchodzimy przez zadaszone wejście prosto do sieni. Z prawej strony zlokalizowano pomieszczenie gospodarcze. Dalej znajduje się podłużny korytarz, z którego można przejść do gabinetu, wc, na klatkę schodową oraz do salonu połączonego z jadalnią i częściowo z kuchnią. Piętro to strefa prywatna domowników. Umieszczono tu dużą sypialnie z osobną łazienką, dwa ustawne pokoje, każdy z osobnym wyjściem na balkon, oraz wspólną łazienkę.

Projekt Z177 D spodoba się wszystkim tym, którzy szukają wygodnego i praktycznego domu.

Dane projektu

  • Powierzchnia użytkowa: 83.66 m²
  • Powierzchnia netto: 105.1 m²
  • Powierzchnia zabudowy: 66.92 m²
  • Wysokość: 7.92 m
  • Wymiary elewacji: 6.92 × 9.62
  • Minimalna działka: 13.92 × 17.62
  • Kąt dachu: 40°
  • Typ dachu: dwuspadowy
  • Kondygnacje: 2 kondygnacje
  • Technologia: drewniany
  • Ogrzewanie: gazowe
  • Wentylacja: mechaniczna
  • Garaż: bez garażu
  • Cena projektu: 4 670 zł
  • Szacunkowa wycena SSO: 150 588 zł

Rzuty

Sprawdź wycenę budowy tego projektu

Darmowa wycena każdego projektu

Zrealizuj swój wymarzony dom szkieletowy z nami! Skontaktuj się, a przygotujemy dla Ciebie bezpłatną wycenę i pomożemy na każdym etapie realizacji.